مصعد كبسولي

التقنية المستخدمة في هذه المصاعد هي تقنية فائقة التطور

تتوفر خيارات متنوعة
السرعة1.00 إلى 1.5 متر/ثانية
نوع الكابينةرؤية من جانب واحد / رؤية من ثلاثة جوانب / رؤية نصف دائرية
تشطيب الكابينة

زجاج مع كابينة مطليّة بمسحوق MS

زجاج مع كابينة من الفولاذ المقاوم للصدأ بتشطيب شعرية

زجاج مع كابينة فولاذية مصممة وتشطيب شعرية

تشطيب الأبواب

باب أوتوماتيكي مطلي بمسحوق MS

باب أوتوماتيكي من الفولاذ المقاوم للصدأ بتشطيب شعرية

باب أوتوماتيكي من الفولاذ المقاوم للصدأ بتشطيب مصمم

باب أوتوماتيكي بتشطيب مصمم من التيتانيوم الذهبي

باب أوتوماتيكي بإطار من الفولاذ المقاوم للصدأ مع زجاج

أزرار لوحة التحكمأزرار ميكرو إلكترونية سطحية، أزرار لمسية
شاشة لوحة التحكم16 مليون دولار أمريكي
العرض

شاشة رقمية LED من سبعة أجزاء

شاشة رقمية نقطية، شاشة LCD

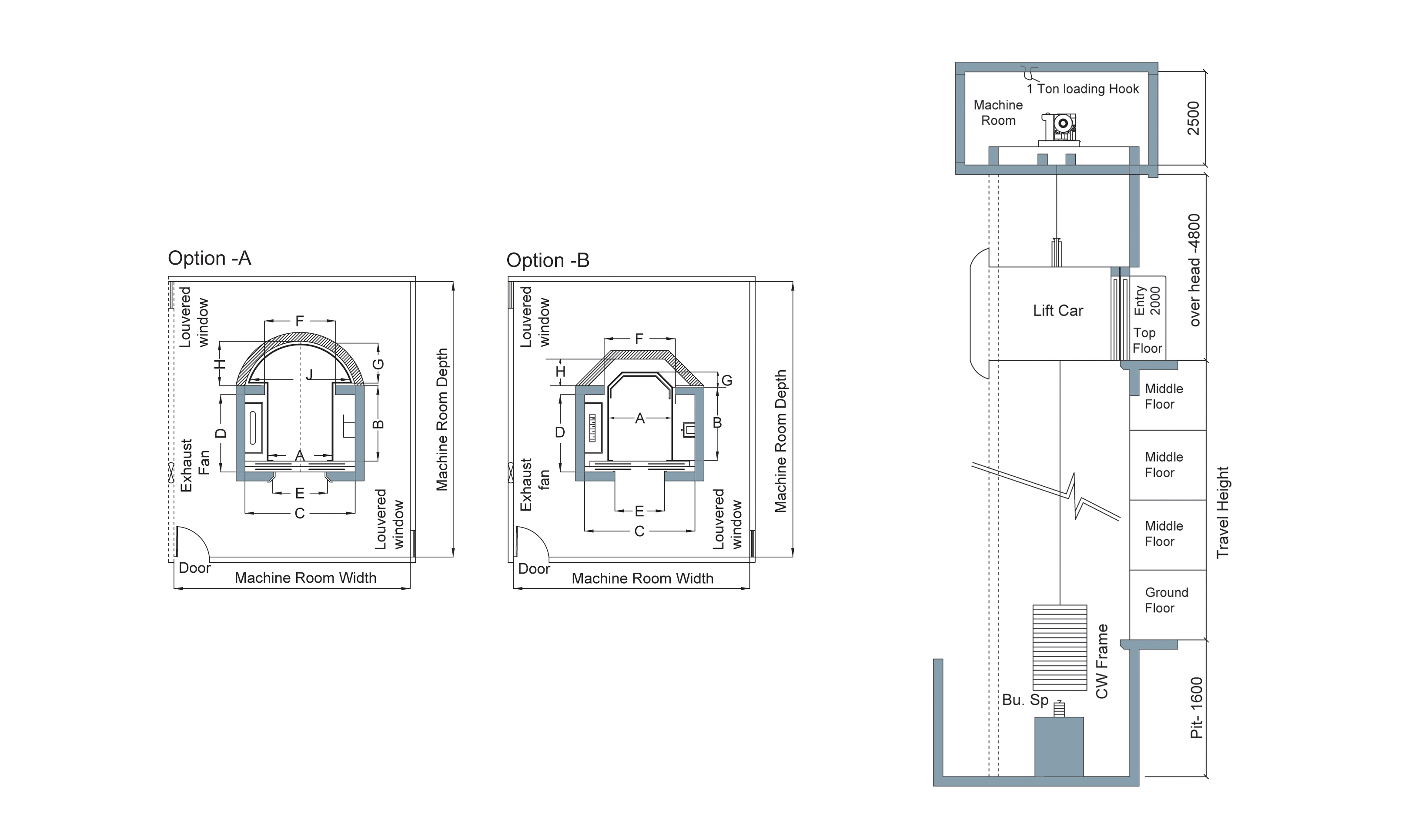
المصعد الكبسولي

  • يمكن تركيب هذه المصاعد على الواجهة الخارجية للمباني أو في الردهات

  • يعطي تركيب هذه المصاعد مظهرًا متجددًا بالكامل للمبنى

  • تتميز هذه المصاعد بتقنيات فائقة التطور

  • تتراوح سعة هذه المصاعد من 6 إلى 35 شخصًا للكبسولات الزجاجية ثلاثية الجوانب

  • تتوفر كبسولات زجاجية خماسية الجوانب بسعة لا تقل عن 13 شخصًا

  • كما تتوفر تصاميم لمصاعد ثمانية الأضلاع

  • يمكن توفير أرضيات رخامية مضاءة من الأسفل، أسقف على شكل جرس، وتصميمات خارجية مميزة للكبائن

  • من الميزات الحصرية إمكانية توفير أبواب زجاجية

  • عند تركيبها في كبسولة زجاجية، تزداد جمالية المصعد بشكل أكبر

  • يمكن أن تعمل هذه المصاعد بنظام الجر أو النظام الهيدروليكي حسب موقع غرفة الماكينات

  • باستثناء تصميم الكابينة، فإن جميع المواصفات الأخرى مطابقة لمصاعد الركاب العادية

كاشف الأبواب بالأشعة تحت الحمراء

نقدم لعملائنا تشكيلة عالية الجودة من كواشف الأبواب بالأشعة تحت الحمراء التي يتم تركيبها على أبواب المصاعد.        تتميز هذه الكواشف بأجهزة استشعار للكشف عن دخول الأشخاص أو البضائع إلى المصعد.        متوفرة بعدة مواصفات وتصاميم مبتكرة لتلبي احتياجات عملائنا.

احصل على الكُتَيّب التفصيلي. انقر هنا